Дом комфорт-класса на Писарева, 8. В самом центре Гайвы.

Аренда коммерческой недвижимости

Пермь | Центр Гайвы
Преимущества
Все коммерческие помещения расположены так, чтобы быть максимально заметными и доступными для пешеходного и автомобильного трафика.
На первой линии
Функциональные коммерческие помещения от 50 кв. м для бизнеса любого формата — с удобной планировкой, высокой проходимостью и перспективой роста дохода.
Площади от 50 кв.м
Высокий пешеходный и автомобильный трафик обеспечивает постоянный поток клиентов и стабильный спрос на ваши услуги.
Высокий трафик
Эргономичные планировки, в которых каждый квадратный метр работает на комфорт, эффективность и удобство ведения бизнеса.
Эргономичные планировки
Все коммерческие помещения расположены так, чтобы быть максимально заметными и доступными для пешеходного и автомобильного трафика.
На первой линии
Функциональные коммерческие помещения от 50 кв. м для бизнеса любого формата — с удобной планировкой, высокой проходимостью и перспективой роста дохода.
Площади от 50 кв.м
Высокий пешеходный и автомобильный трафик обеспечивает постоянный поток клиентов и стабильный спрос на ваши услуги.
Высокий трафик
Эргономичные планировки, в которых каждый квадратный метр работает на комфорт, эффективность и удобство ведения бизнеса.
Эргономичные планировки
Преимущества
Энергетическая мощность
вт/кв.м
от
222
Высота витринных окон
м
от
2,5
кв.м
от
50
кв.м
до
1181
Коммерческие площади
м
3,6
Высота потолков
Хорошая
вентеляция
Выберите подходящую
под ваш тип бизнеса
Эргономичные
планировки
Холодная и горячая вода
Отделка
Черновая
Особенности
Нажимая на кнопку, вы соглашаетесь с политикой конфиденциальности
Получите коммерческое предложение прямо сейчас!
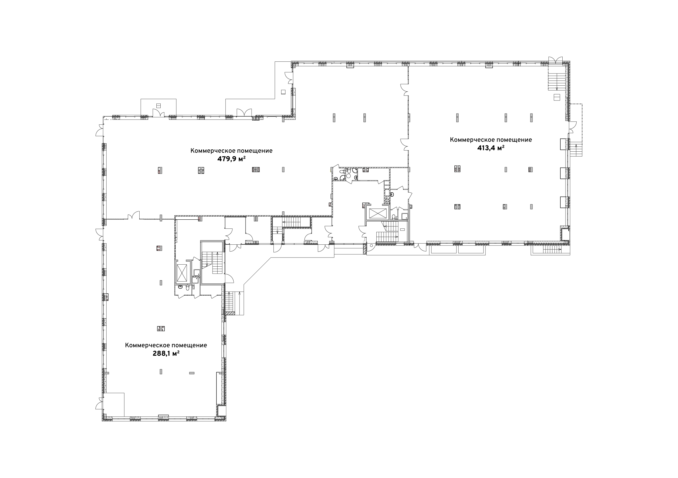
Планировки
S = 413.4 кв.м
Помещение #3
Свободная резка площади
S = 479.9 кв.м
Помещение #2
Свободная резка площади
S = 288.1 кв.м
Помещение #1
Свободная резка площади
План этажа
В надежных руках
Наша компания на рынке недвижимости Перми с 1994 года, построили десятки коммерческих объектов — бизнес-центры, административные здания, офисы и помещения для стрит-ритейла. Мы умеем видеть детали, предугадывать потребности и создавать качество, которое ощущается с порога.
ЛОКАЦИЯ И ТРАФИК
Дом на Писарева, 8 - сердце Гайвы
1500+ пешеходного трафика в день
500+ автомобильного трафика в день
Возможность сформировать оптимальную площадь под задачи вашего бизнеса — от компактных решений до масштабных форматов.
Свободная резка площадей от 50 кв. м
Индивидуальный подход к срокам и параметрам договора с учётом формата и этапа развития бизнеса.
Гибкие условия аренды
Понятные условия аренды, фиксированные ставки и отсутствие непредвиденных расходов.
Прозрачный договор без скрытых платежей
Помещения с подведёнными коммуникациями и возможностью быстрого запуска без лишних затрат.
Готовность к эксплуатации
Условия аренды
Нарезка помещений
любой площади от 50 м2
по индивидуальным запросам
Получить коммерческое предложение
Заполните форму и в ближайшее время с вами свяжется наш менеджер